• SUWA
  • À propos
    • Présentation
    • Publications
    • Contact
  • Architecture & objets
  • Recherche & Expositions
    • PGL
    • Terrains vagues
    • Watercities
  • Instagram
SUWA
  • SUWA
  • À propos
    • Présentation
    • Publications
    • Contact
  • Architecture & objets
  • Recherche & Expositions
    • PGL
    • Terrains vagues
    • Watercities
  • Instagram

Combo House / Maison Combinée

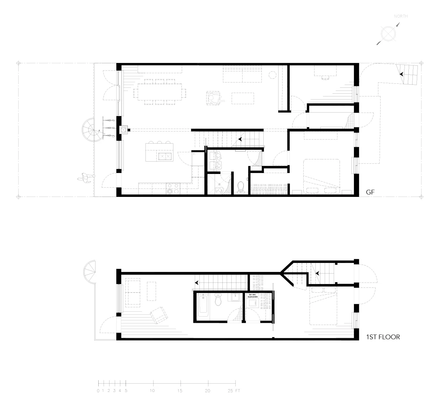
Projet de réaménagement dans un six-plex de la Petite Italie à Montréal. Trois appartements ont été joints afin de créer une maison unifamiliale. Pour ce projet, nous avons opté de décloisonner les espaces principaux du RDC en perçant le mur central entre les anciennes unités en deux points clés. Cette action nous a permis d’obtenir une meilleure largeur pour placer la cuisine et la salle à dîner à l’arrière. En retirant les circulations redondantes des anciennes unités, nous avons également intégré deux chambres à l’avant du bâtiment ansi qu’une salle de bain munie d’un bain vapeur. Les façades arrières ont été retravaillées pour obtenir plus de luminosité, et un accès direct au jardin. Le nouvel escalier menant à l'étage a été installé dans l'empreinte de l'ancien corridor afin de respecter la logique structurale du bâtiment d'origine. Le palier supérieur est un petit salon qui donne accès à une troisième chambre plus privée munie d’une salle de bain.

(eng) Renovation project located in a six-plex of Little Italy in Montreal. Three apartments were joined to create a single family home. For this project we opted for the connection of the main areas of the ground floor by partially piercing the central wall between the old units. This action gave us more width to work with to locate the dining room and the kitchen together on the rear side. By cancelling redundant circulations from the former units, we were able to fit two bedrooms and a bathroom with a steam room. The rear facades have been reworked to obtain more natural light, and direct views to the garden. The new staircase leading to the first floor was installed in the footprint of one of the old corridor in order to respect the structural logic of the original building. Upstairs, the landing doubles as a den and gives access to a third bedroom and a bathroom.

.......

Design : Marie-Eve Lamarre (designer) et Jean-Christophe Leblond (Architecte) 
Structure: BESINC
Construction : Brodsky & Bond 
Photographie: Paul Litherland

 

SUWA_combo__10.jpg
SUWA_combo__06.jpg
SUWA_combo__04.jpg
SUWA_combo__02.jpg
SUWA_combo__12.jpg
SUWA_combo__08.jpg
SUWA_combo__22.jpg
SUWA_combo__13.jpg
SUWA_combo__03.jpg
SUWA_combo__05.jpg
SUWA_combo__09.jpg
SUWA_combo__11.jpg
combo-plan.jpg
combo-axo-1-01.jpg

Index