• SUWA
  • À propos
    • Présentation
    • Publications
    • Contact
  • Architecture & objets
  • Recherche & Expositions
    • PGL
    • Terrains vagues
    • Watercities
  • Instagram
SUWA
  • SUWA
  • À propos
    • Présentation
    • Publications
    • Contact
  • Architecture & objets
  • Recherche & Expositions
    • PGL
    • Terrains vagues
    • Watercities
  • Instagram

Maison Owen

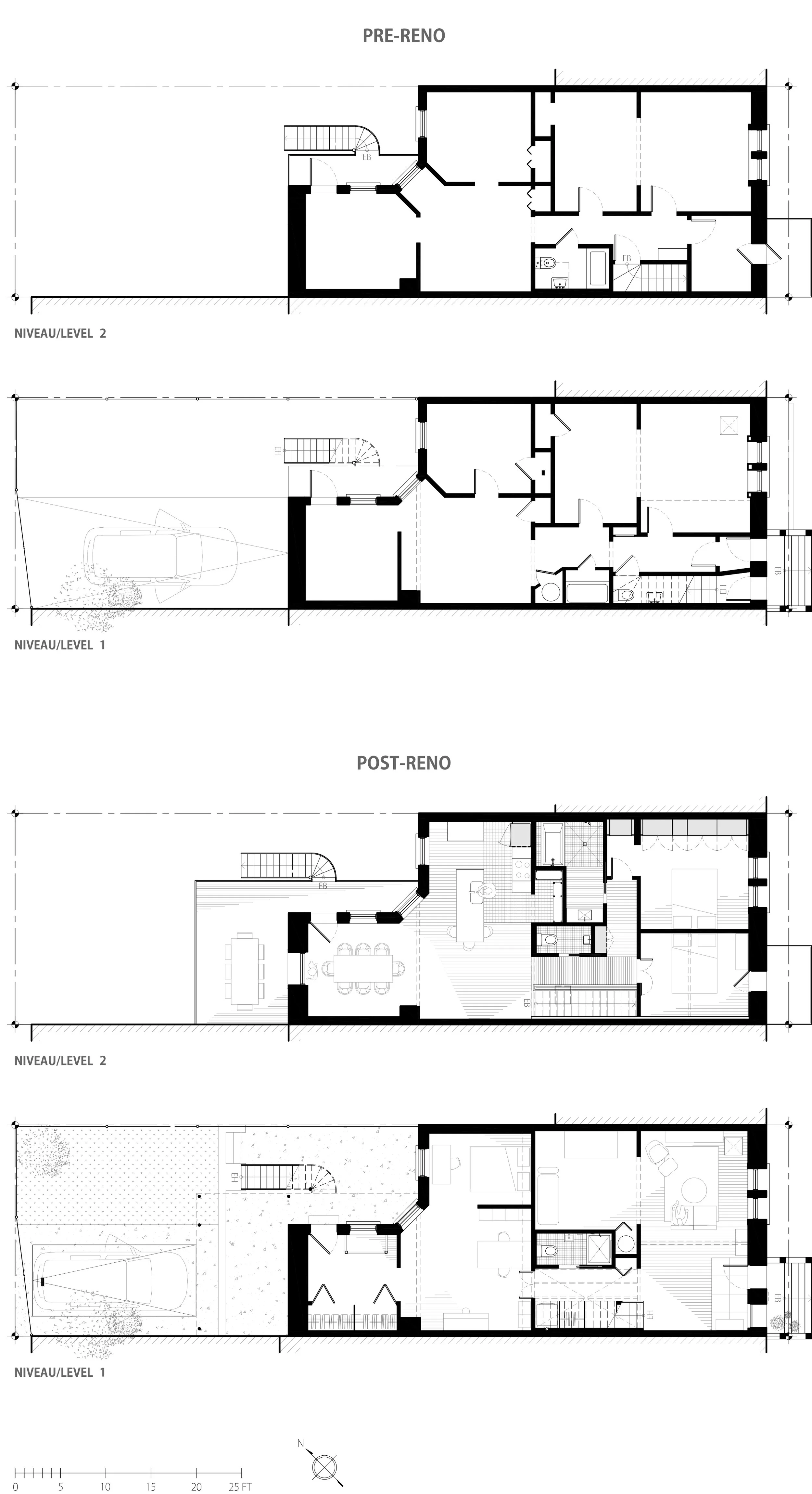
(fr) Ce projet de transformation visait à fusionner les deux niveaux d’un duplex centenaire en vue de créer une maison unifamiliale aux intérieurs contemporains. Ici, le rez-de-chaussée est dédié aux fonctions d'accueil, avec son grand vestibule arrière, sa chambre d'invités, sa salle d'eau compacte et son séjour attenant à une salle de traitement pour professionnel de la santé. Le nouvel escalier intérieur est muni d'un garde-corps en fer forgé aux détails épurés et abrite sous sa volée un rangement généreux, ainsi qu'une armoire buanderie. Inversement, le deuxième étage a été privilégié pour l'aménagement des fonctions plus privées de l'espace domestique, en l'occurrence la cuisine, la salle à manger, la salle de bain familiale et les chambres à coucher. Grace au décloisonnement complet de la partie arrière de l'étage et à l'ajout d'une grande ouverture sur le mur du fond qui était autrefois aveugle, la lumière naturelle baigne désormais l'espace. Un pont de bois ajouré traversant la trémie de l'escalier permet à cette lumière d'illuminer la circulation du rez-de-chaussée. Une terrasse spacieuse a en outre été construite à l'arrière, dans le prolongement de la nouvelle salle à manger. L'ajout d'une cimaise parcourant l'ensemble des espaces unifie le tout et ajoute une touche plus chaleureuse et traditionnelle à ce décor minimaliste.

____________________

Architecte : Atelier SUWA -Équipe : Marie-Lyne Boulet, Marie-Eve L. Brodsky
Design d’intérieur : Atelier SUWA
Entrepreneur général : Brodsky & Bond
Acier architectural : Gallant Solutions
Photographe : Élène Levasseur
Année de construction: 2018-19

 Renovation project of a Mile end duplex into a single family home.
 Renovation project of a Mile end duplex into a single family home.
 Renovation project of a Mile end duplex into a single family home.
 Renovation project of a Mile end duplex into a single family home.
 Renovation project of a Mile end duplex into a single family home.
 Renovation project of a Mile end duplex into a single family home.
 Renovation project of a Mile end duplex into a single family home.
 Renovation project of a Mile end duplex into a single family home.
 Renovation project of a Mile end duplex into a single family home.
 Renovation project of a Mile end duplex into a single family home.
 Renovation project of a Mile end duplex into a single family home.
 Renovation project of a Mile end duplex into a single family home.
 Renovation project of a Mile end duplex into a single family home.
 Renovation project of a Mile end duplex into a single family home.
 Renovation project of a Mile end duplex into a single family home.
 Renovation project of a Mile end duplex into a single family home.
 Renovation project of a Mile end duplex into a single family home.
 Renovation project of a Mile end duplex into a single family home.
 Renovation project of a Mile end duplex into a single family home.
 Renovation project of a Mile end duplex into a single family home.
 Renovation project of a Mile end duplex into a single family home.
/Users/ateliersuwa/Dropbox/01. SUWA MTL/02. WEB/web-current/port

Index